Under Contract

Call Today To Inspect

 

It has been many years since we have had the opportunity to represent a sale offering such a clever design where the families can co exist with complete privacy. The opportunity to bring two families together on the one allotment has never been more appealing. For the city slickers longing for their own little slice of Yellowstone in the country … we have found your retreat. The superior design, the massive open spaces, and the quality finishes along with a dual living gem on a valuable half an acre acre plot are all tucked away in a rural setting and located on the doorstep of the township of Landsborough.

Features to be admired:

Brand new low maintenance residence all on one level (No stairs to negotiate)

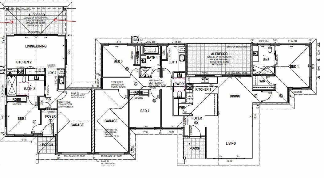
Purpose built four bedroom family home with dual living certification

Designed with extended family in mind offering separation with the 4th bedroom forming part of a separate studio residence

The studio has complete privacy including an open plan kitchen dining area, along with a classy undercover alfresco area

The privacy and separation continues with the studio residence having its own fully fenced back yard

Main residence encompasses the brief of privacy and separation also with the master suite located on the opposite wing to the other bedrooms

A second outdoor entertaining area adjoins the dining room from the main residence providing another 20m2 of under roof living

Quality build of the highest standard showcasing square set gyprock, wall hung cabinetry in wet areas, and 20 mil stone in both kitchens

If you live in Landsborough you have the real estate advantage of location, location, location. The locals will tell you the best $6 you can spend is to take the train from Landsborough station, platform 2 to Central station Brisbane city, platform five. It departs hourly and can have you sitting at the ballet without the hassle of car parking. And when you return from the city excursion the most private internal hidden half an acre awaits you with a brand new master built home ready to move into.

 

Please call Indy (0404 155 581) or Justin (0400 822 069) today for further information.

 

4 2 2 2,378 m2
Address 25a Mill St, Landsborough
Price For Sale By Offer
Property Type Residential
Property ID 11090
Category House
Land Area 2,378 m2
Floor Area 275 m2

Agent Details

Indiana Voss photo

Indiana Voss

0404 155 581
View Profile
Justin Voss photo

Justin Voss

0400 822 069
View Profile