Sold

Brand New Home Nearing Completion In Griffin

Griffin is a very fast growing suburb which will soon have its own school. It has easy access to the Bruce Highway and is only 10 minutes from the expanding Westfield North Lakes.

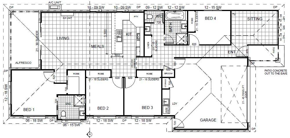
The house is a 4 bedroom home with 2 car accommodation. The main bedroom has an ensuite and WIR. The house has plenty of storage with full size wardrobes in all bedrooms, a big linen cupboard and it also has a broom cupboard.
There are 2 living areas with one opening onto the under-roof outdoor entertaining area.

House 187.52sqm
4 bedrooms + ensuite & WIR
2 living areas
Double lock-up garage
315sqm block
Air-condition
Under-roof outdoor entertaining area
Easy highway access

Features

Outdoor entertainment area
4 2 2 315 m2
Address 10 Champion Crescent, Griffin
Price SOLD
Property Type Residential
Property ID 4596
Category House
Land Area 315 m2

Agent Details

Nigel Lucas photo

Nigel Lucas

0413 351 603
View Profile