Sold

Block of 5 Units – Strong Income – Buy & Hold Investment Excellent Condition and Excellent Buderim Location

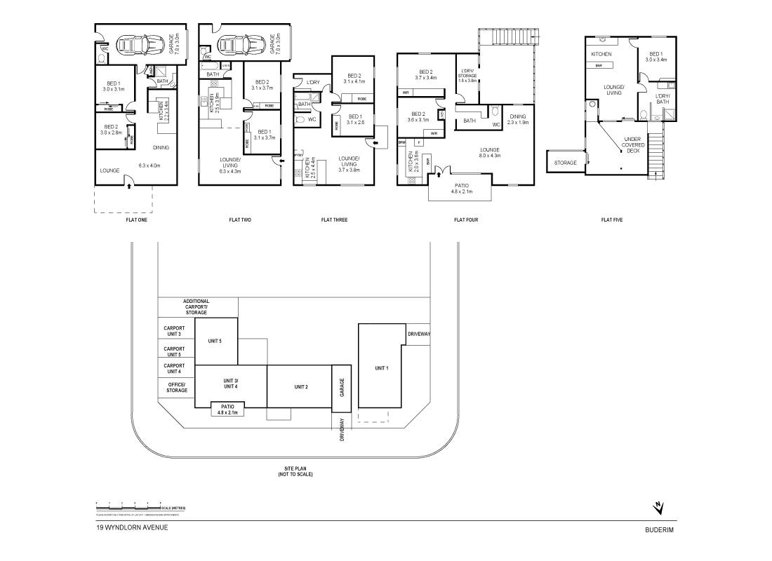
Located in a sought after Buderim precinct, this very noteworthy property provides an excellent income and should not be overlooked by those looking for a solid investment with solid returns. The 4 x 2 bedroom and 1 x 1 Bedroom units are situated on a level 766sqm block with a leafy, three street frontage; they are immaculately maintained and boast long term tenants. Each unit has its own laundry and lock-up garage/carport for off-street parking and the location could not be better. Do your homework – this property will be sold on or before Auction day.

Opportunity
• Buy and hold investment
• Approximately $60,000 p.a. after expenses; Additional information can be requested from Agents
• Further refurbishment potential – The property is in excellent condition but further works could increase income
• Positive gearing opportunity
• Live in one unit to manage or let out all five units

Inclusions
• Each unit has its own bathroom, kitchen and laundry
• Each unit has an exclusive-use deck or courtyard
• All bedrooms have built-in wardrobes
• Lock-up office and storage facility on site
• Beautiful garden surrounds in a quiet locale
• Long term tenants in place

Location
• Less than a Kilometre to CBD
• 240m to Bowls Club
• Close to transport and medical
• Set in Buderim’s idyllic “Food Street” where community spirit and pride are apparent

Floor plans are provided.
9 5 11 766 m2
Address 19 Wyndlorn Avenue, Buderim
Price SOLD
Property Type Residential
Property ID 60
Category Block Of Units
Land Area 766 m2

Agent Details

Justin Voss photo

Justin Voss

0400 822 069
View Profile